Das Grundstück und seine Umgebung
Das Grundstück befindet sich in einer der begehrtesten in der Stadt Rosenheim.
Der Stocket, ein ruhiges Wohnviertel westlich der Innenstadt gelegen, bietet eine Vielzahl von gewünschten Lagekriterien: kurze Wege für Einkäufe, medizinische Versorgung, Kunst und Kultur, schnelle Anbindung an Fernstraßen und Bahn, Schulen in naher Umgebung!
Einige Parks und der Inndamm sind zu Fuß oder mit dem Fahrrad in wenigen Minuten erreichbar. Das „Herz“ von Rosenheim, der Max- Josefs- Platz, ist nur rund 15 Minuten fußläufig entfernt.
Rosenheim bietet zudem ein überdurchschnittliches Sport- und Freizeitangebot mit den nahe gelegenen Bergen, einer Vielzahl an Seen und den Naherholungsgebieten an den Flüssen Mangfall und Inn.
Festspielzeit im Sommer, Museen und Konzerte das ganze Jahr, kurze Wege nach Salzburg und München oder Erl – Kulturbegeisterte kommen ebenfalls voll auf Ihre Kosten!
Über das Grundstück wird ein eigenständiger Vertrag mit dem Erbpachtgeber geschlossen!
Das Einfamilienhaus
Das genehmigte Einfamilienhaus ist der perfekte Ort für die Verwirklichung aller Wohnbedürfnissen und ein wahrliches Raumwunder!
Das Erdgeschoss empfängt Sie mit einem großzügigen Eingangsbereich mit Zugang zum privaten Arbeiten, dem Gäste- Bad und dem Wohnzimmer mit offener Küche. Durch die beiden großen Fenster kommt viel Licht in den Wohnraum und Sie genießen die Aussicht in Ihren Garten.
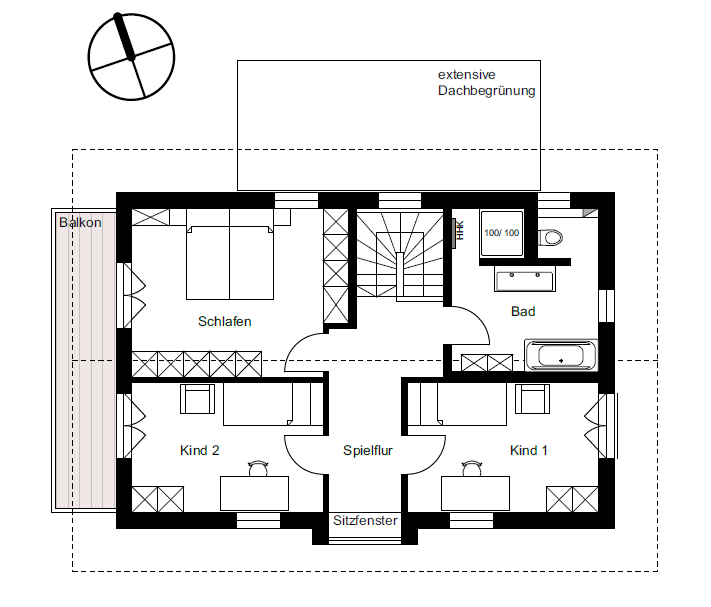
Das Obergeschoss bietet helle, großzügige Räume für jedes Familienmitglied. Das moderne Bad lädt zur Entspannung ein. Der Flur hat zahlreiche Stellflächen und kann beispielsweise auch hervorragend zum Spielen genutzt werden. Nach Westen erstreckt sich der Balkon, ein perfekter Ort zum Sonnen und mit Blick ins Grüne!
Die Planung des Einfamilienhauses wird mit einem großen Hobbyraum und weiteren Räumen im Keller abgerundet.
Objektzustand
- Begenehmigung für das Einfamilienhaus liegt vor
- Baubeginn voraussichtlich Frühjahr 2026
- ruhige, zentrumsnahe Lage
- West- Terrasse
- Einzelgarage+ Stellplatz
- Anschluss eines Kaminofens möglich
- Gäste- Bad
- Altersgerechter Grundriss möglich!
- uvm.
Wir haben Ihr Interesse geweckt? Dann melden Sie sich gerne bei uns!
Nutzen Sie für Ihre Erstanfrage bitte das Kontaktformular dieser Website oder rufen Sie uns gerne direkt an unter 08031-382007. Selbstverständlich beantworten wir alle Ihre Fragen und vereinbaren eine unverbindliche Besichtigung.



























